The Merchants
The 77 C&C Park, Beijing
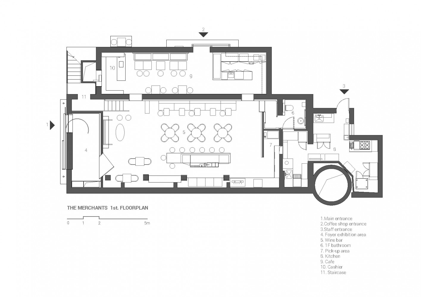
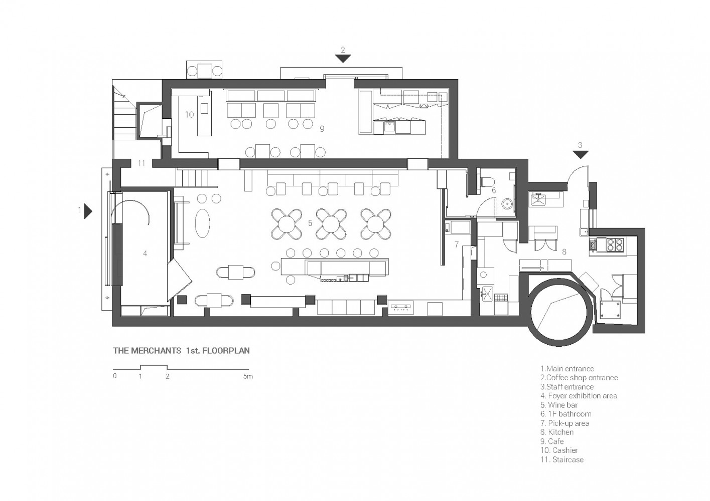
Interior design for The Merchants wine bar located in the Dongcheng district of Beijing. The space was divided into five main rooms. The foyer, where one enters, doubles as an exhibition area for temporary art exhibitions. The wine bar is a space dedicated to wine and cocktails. The coffee shop serves gourmet food to the daytime customer.
On the second floor there is a gallery space used by invited artists along with a lounge for club members.
Category
Renovation, Restaurant & Bar
Location
The 77 C&C park, Beijing
Area
373m2
Client
Private
Year
2018
Status
Completed

