Casa Picao
Lisbon
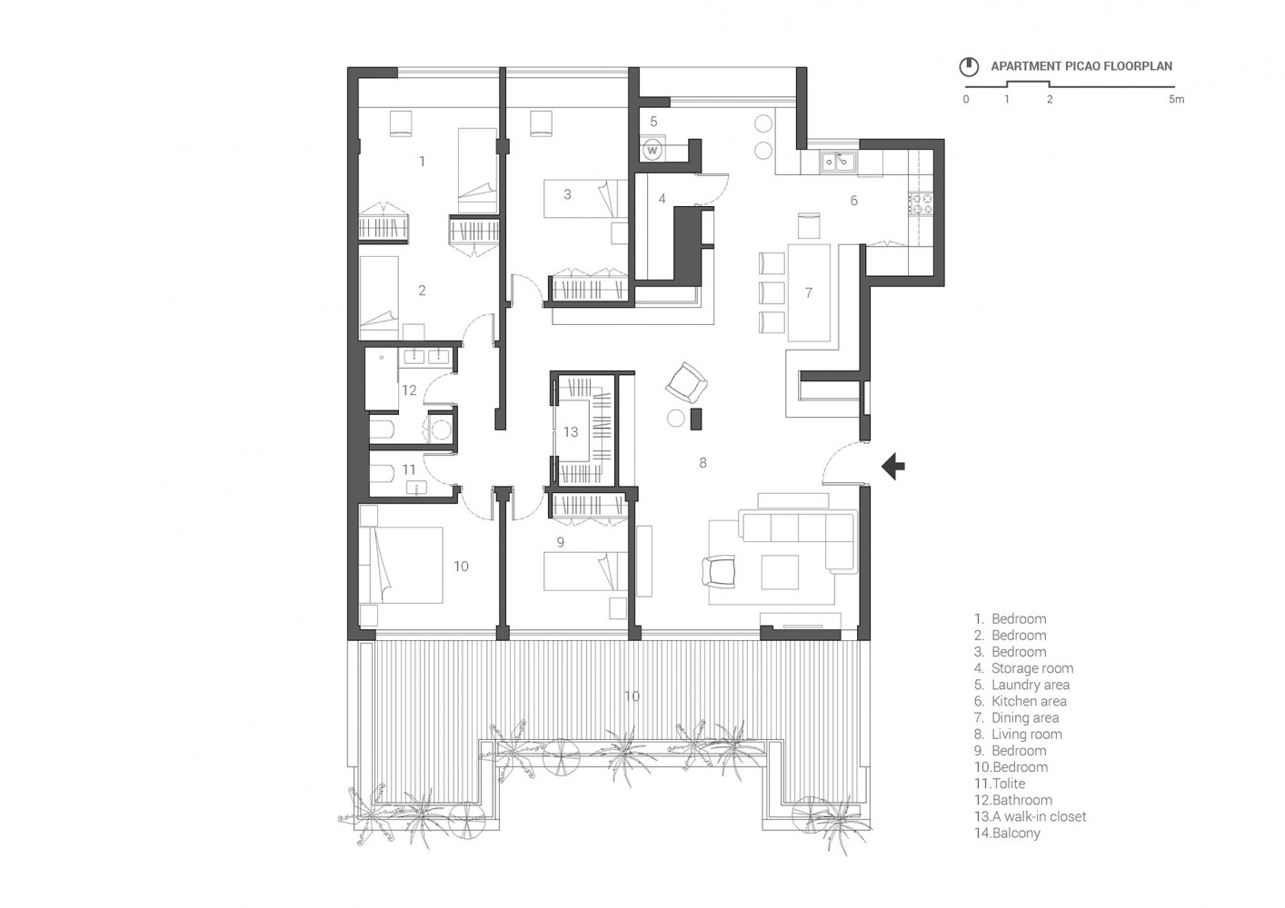
Interior design and full renovation of a Lisbon apartment. The challenge was to update the existing, outdated layout to fit a family with four children. The floorplan of the apartment was redefined to be more open and to have large social areas where the family can be together during their daily activities. An existing fireplace was updated and became a focal point.
Category
Renovation, Residential
Location
Lisbon
Area
190m2
Client
Private
Year
2018
Status
Completed

