PageOne SANLITUN
This well-known bookstore is located in the fashionable Sanlitun district of Beijing. Our primary design objective was to introduce a new visual experience for clients while respecting the original character, status and location of the original store. Secondly, to optimize the functioning of the store in a manner consistent with the store’s business model, making the whole space more flexible, and enhancing the customer experience.
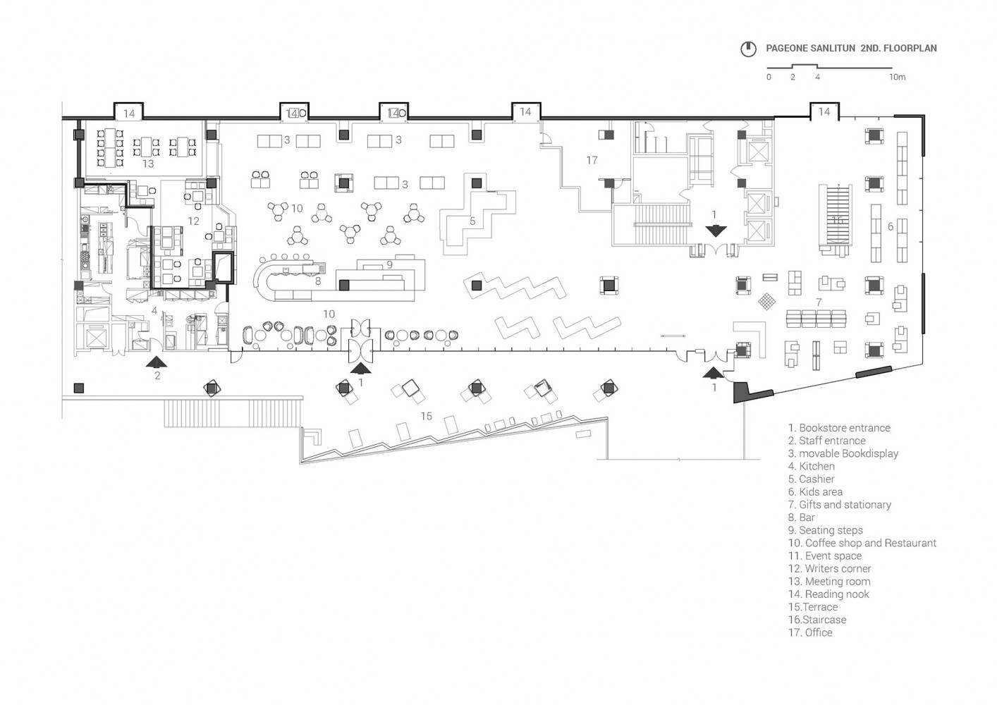
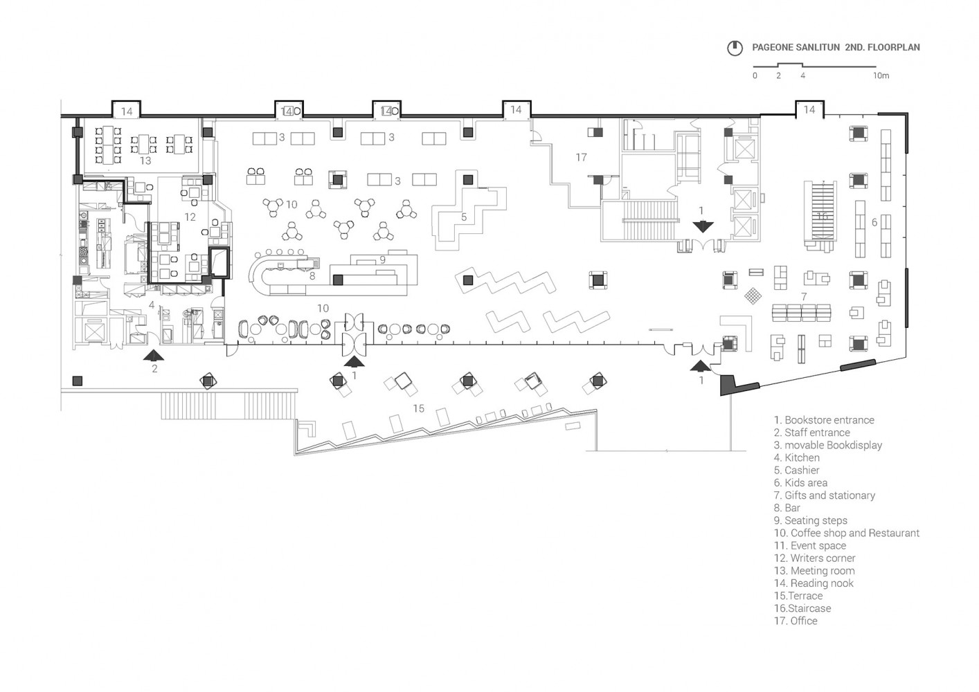
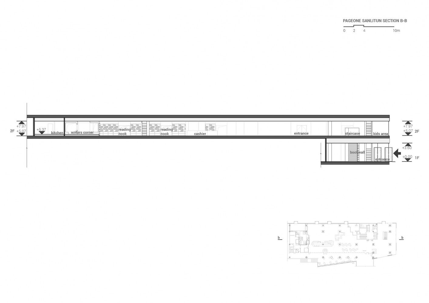
One side of the staircase was turned into a bookcase, in order to create a visual landmark within the store, visible from the street outside. The open bar and flexible events area on the second floor enhanced the functionality of the space. The north west corner, most exposed to natural light, was turned into a modern wood-panelled “writers’ corner”.
710m2

