Casa VK
Lisbon
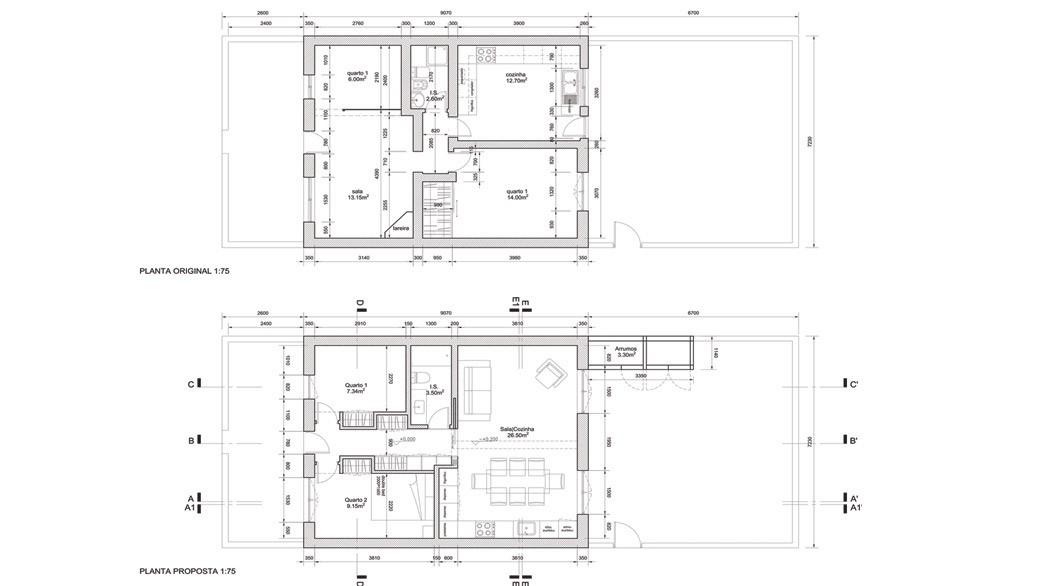
This small house is located on a quiet road in the Ajuda district of Lisbon. Previously it was divided into many very small rooms. We used the high ceilings as an opportunity to create two mezzanine beds, while connecting the living/social space smoothly to the large terrace. This resulted in the whole space being opened up visually, allowing natural light to flow.
Category
Renovation, Residential
Location
Lisbon
Area
60m2
Client
Private
Year
2018
Status
Completed

