P&T Apartment
Dongzhimen, Beijing
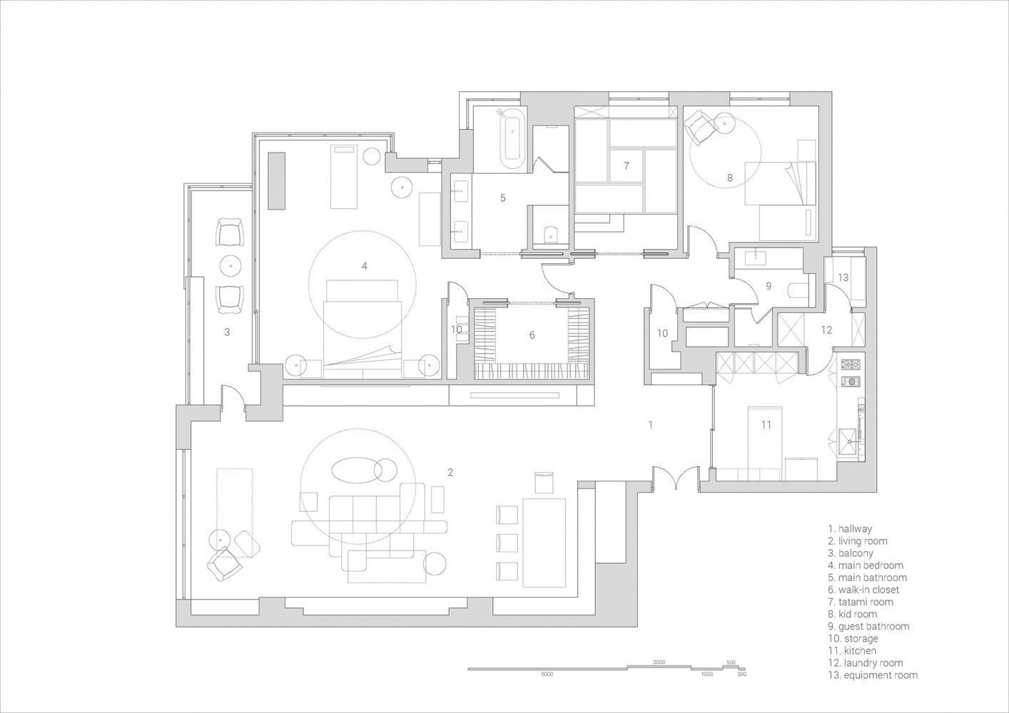
Interior design for a high-end apartment in Dongzhimen. The project was to optimize the use of space to meet the needs of a young family. The materials and the light both played important roles in achieving the objective. The rearranged layout was function-oriented in order to fit the family’s daily routine while maintaining a contemporary urban look.
Category
Renovation, Residential
Location
Dongzhimen, Beijing
Area
230m2
Client
Private
Year
2017
Status
Completed

