EBI Hair Salon
Sanlitun, Beijing
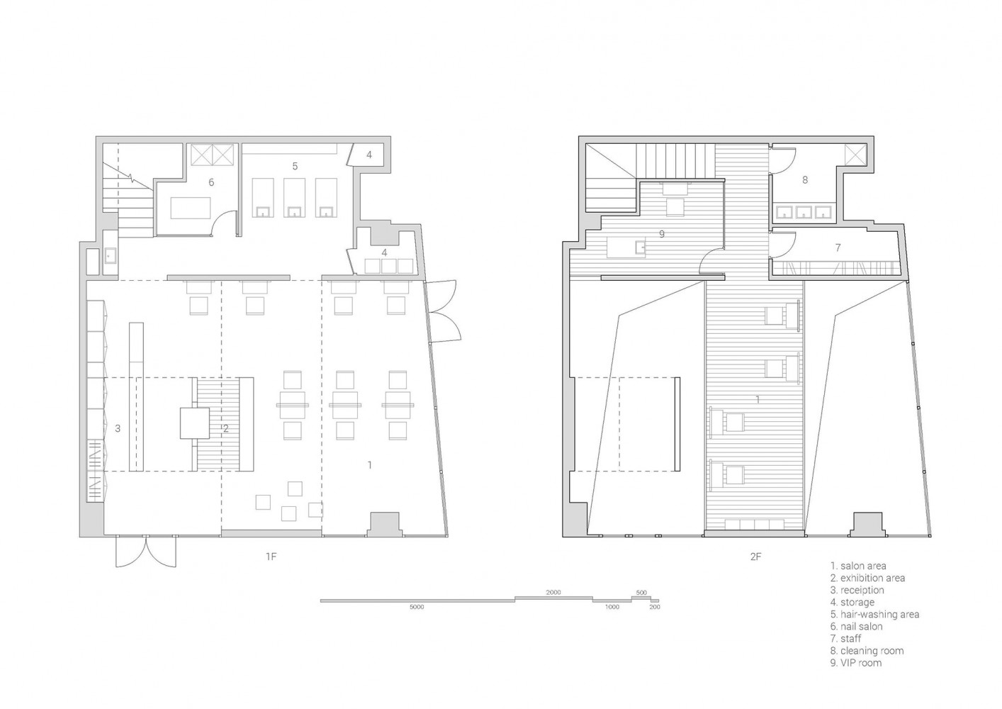
Interior design for the flagship store of the brand EBI in Beijing. This project was key to creating a new identity and image for the EBI brand. We chose a simple selection of colours and materials, keeping it neat and clean. The wood bringing warmth; the white surfaces to let the space breath; lamps, plants and other hanging decorative elements to create the lively atmosphere.
Category
Renovation, Commercial
Location
Sanlitun, Beijing
Area
150 m2
Client
Private
Year
2014
Status
Completed

